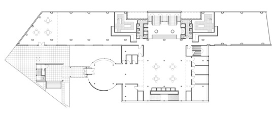
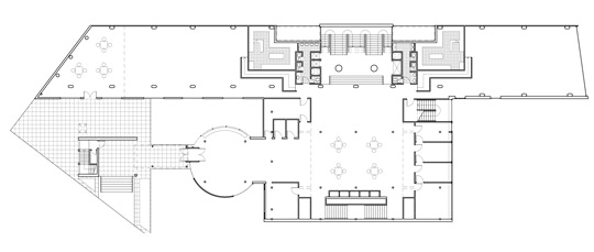
La Citè de Rèfuge (l’Esercito della Salvezza – Rue de Cantagrel 12 – Parigi) è un edificio progettato da Le Corbusier e Pierre Jeanneret tra il 1929 ed il 1933. Si tratta di un edificio che doveva includere nel proprio volume una molteplicità di funzione, divenendo, di fatto l’antesignano delle Unitè di Habitation. E’ di fatto il primo edificio residenziale completamente chiuso, almeno nella concezione iniziale lecorbuseriana. Come tipo edilizio, la Citè de Rèfuge, ha come riferimento gli impianti funzionali degli istituti di beneficenza, degli ospizi, del diciottesimo e diciannovesimo secolo. Il progetto, però, combina assieme più funzioni: spazi di lavoro, dormitori, spazi sociali, servizi, biblioteca, ecc.., spesso sperimentando, molto spesso infischiandosene dei regolamenti e delle leggi allora vigenti.
Il lotto, compatto, ha fornito l’occasione per un approccio radicale, sia nel portare tutti gli ambienti verso la luce, sia a generare spazi inconsueti. Soprattutto per dare una collocazione insolita alle sale d’ingresso, in modo da generare un processo, percepibile di accoglienza, a cui era vocato l’Esercito della Salvezza. Il cuore progettuale, voluto da Le Corbusier, era la “stecca” dormitorio, dominata da una grande parete a strapiombo, con una cortina di vetro (di oltre 1000 metri quadrati). Fondamentale per il successo di questo elemento/parete di vetro , avrebbe dovuto essere un sistema tecnologicamente ambizioso ed ardito, di doppi vetri e aria condizionata ( definito come “espiration exacte“). Questi non sono mai stati costruiti come previsto, e l’effetto di pelle pura e semplice della parete è stato definitivamente perso. Lo stesso Le Corbusier, apportò delle modifiche, in seguito all’edificio, applicando dei Brises soleil (poi rimossi), nel tentativo di impedire che i locali avessero un surriscaldamento eccessivo, soprattutto durante i mesi estivi. Un edificio complesso, che anche nei colori delle facciate, ci fa capire di essere qualcosa di nuovo, di innovativo.
Le Corbusier in Paris
Con il rispetto del copyright delle immagini selezionate


















Lascia un commento